Updated design of community events center draws favorable reviews
Published 8:30 am Thursday, October 7, 2021
PORT ORCHARD — The latest design iteration of the South Kitsap Community Events Center, presented to the Port Orchard City Council at a late September meeting, received rave reviews from council members.
Design representatives from Bremerton-based architectural firm Rice Fergus Miller unveiled the latest design refinements to the council months after their first presentation was met with mixed reviews. This time, however, councilmembers enthusiastically approved of the building’s two-story layout — and were particularly impressed with the multi-use center’s external elevation.
“This is much improved,” said council member Cindy Lucarelli following the presentation by RFM, which was part of a remotely carried Zoom meeting. “It’s a beautiful building. I can’t even begin to tell you how much improved it is, and I really do love this design. I think it’s something we can be really proud of.”
Lucarelli and other council members were particularly struck by a design element above the main entrance, which now is at the north end of the building facing Bay Street. Designers have created a striking visual element that allows light to shine through lettering cut through wood above the entrance.
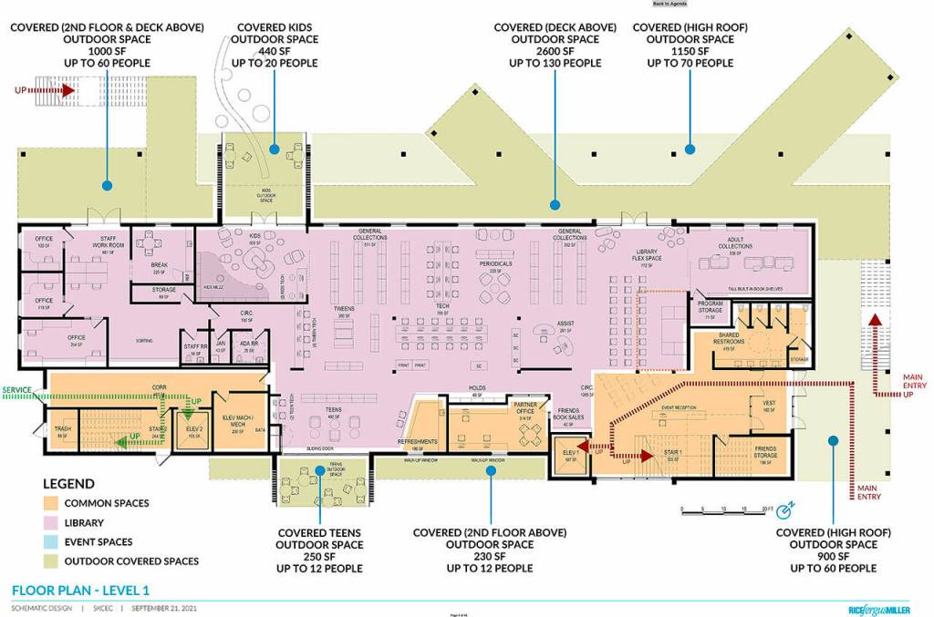
The city officials also said they liked the wood panels on the building exterior, as well as the expansive outdoor decking, 80% of which is covered by an overhang to protect visitors from the weather. The decking juts out toward the Sinclair Inlet shoreline, connecting visitors with the waterfront, the designers said.
Angie Tomisser of RFM told council members that the expanded and covered decking was intentional.
“One of the things we really heard from the public feedback was to provide a lot of covered outside space,” Tomisser said. “We want to be able to use this building year-round.”
In the revised design, two stairways — one near the front entrance — lead to the deck and its striking view of the water.
Entry moved to front end of building
Steve Rice, principal architect for RFM, said in the latest design concept, the entrance was moved from the Bay Street-facing front of the building to the north end side in order to attract people from every side.
“We’re appealing to all directions and we think that’s a big improvement,” Rice said. “It also takes the entry to the upper floor out of the middle of the library space so it’s easy to separate the library from the other areas.”
The $20 million, 24,000-square-foot community events center will prominently feature the Port Orchard branch of the Kitsap Regional Library on the lower level. Visitors will enter the building and walk into shared space that includes a stairway to the second floor, public restrooms on the lower floor and an entrance to the library.
Within that shared space is a partner office for the building’s operations manager and a refreshments area — a place where coffee could be available and space for people to gather and chat. The design change for the entrance, project manager Lorie Limson Cook said, eliminates any confusion as to how to get to the library or the events space on the second floor. The restrooms also are now easily located from the entrance.
Inside the library are book collection sections for adults, teens and children, and meeting rooms that can accommodate groups of various sizes. Quiet reading space also has been created for adults. Large windows in the library will not only face the water side of the building but will provide an expansive view of Bay Street, Tomisser told councilmembers.
She said the design provides for an active, flexible zone the library will use for children’s activities, speakers or special events.
“It’s a very nimble space,” Tomisser said. “The interesting thing about this beyond the views is that it has a really cool opening in the floor above that gives you some visual connection to what’s happening upstairs.”
The design also has provided the staff some work space to the left of the building, including a break room and restrooms. On the opposite side of the building is a service entrance next to parking for visitors. That’s where setup crews will make deliveries for events and will use an interior stairway and an elevator to the second floor.
On the water side are three doors that feed out onto an expansive plaza. A sliding door near the teen section also will open up to the plaza, designers said.
As visitors take the stairway up to the second level, they will be met with three views: one of the water, a second of Bay Street and a third of the lower library space viewed from the opening above. The plan has a large space that’s flexible enough to accommodate meetings of different sizes. It can also be used as a spill-out place next to the building’s largest space, which can seat up to 150 people in a classroom configuration. If a dinner event is planned for the space, it can accommodate up to 120 people. It can be opened up or closed with the use of a large retractable wall.
To the far right is a large meeting room that can fit 24 round tables; in a classroom configuration, 30 tables can be accommodated, the designers told council members. Smaller meeting rooms also run along a corridor running north-south along the building.
“These rooms are a little bit smaller so the intention here is to give some smaller space to people who are coming either for a meeting or to the library,” Tomisser said.
The second-floor event area will be served by a staging kitchen, which will be used by caterers who will bring in food that can stay warm or cold, then be prepped and served. Designers also have integrated space called the “LITE lab” that will primarily be used by the library but can also accommodate the needs of special events during the library’s off-hours.
“The LITE lab represents ‘learning, innovation, technology and exploration,’” the RFM presenter said. “We really see this space as a cool, coworking-type space where it can be used multigenerationally. It can be used for studying and for work or other flexible uses.”
Rice said covered deck space at both ends of the building in the initial design have now been enclosed on the upper level to provide additional meeting space for the community.
Mayor Rob Putaansuu reminded that the designers have, to this point, focused on interior uses and the exterior elevation. He said concepts that incorporate landscaping will come later in the process.
“There’s really nothing to show there [involving landscaping],” Putaansuu said. “It’s just getting started in that area… there’s still a ton of work to be done. But I’m really pleased, and I hope you are, too, with where we’re at.”
The mayor said he expects a more comprehensive design will be presented next year and presented at a public forum, COVID-19 willing.
“I’m hopeful we will be able to [present] this in a much more public fashion with boards on the wall.”
