Petco to build new store in Port Orchard; company isn’t confirming
Published 1:46 pm Wednesday, May 11, 2016
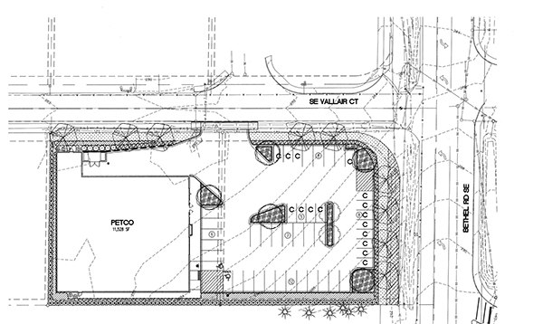
Pet supply retailer Petco is planning to build a new store adjacent to Bethel Road that would serve the Port Orchard area.
The store, to be located south of Taco Time on Vallair Court, could open by the end of the year.
Plans for a new structure were submitted to the City of Port Orchard and reviews are nearing completion, Nick Bond, the city’s community development director, said.
Bond said the building will be just under 12,00 square feet.
But Megan Oxford, consumer public relations manager for Petco, said she couldn’t confirm the company would be building a store in the area.
“It is an area being explored, but at this time I am not able to share any details with you,” Oxford said.
A check of online employment sites, though, showed that Petco has advertised the last several weeks to fill numerous job openings for a Port Orchard location. Online job site indeed.com is advertising an opening for a grooming salon manager and dog groomer.
A Petco store here will join an existing Bremerton store to expand Petco locations in South Kitsap.
Competitor Petsmart doesn’t have any locations in South Kitsap, although it does have a store in Silverdale.
Port Orchard has two independent pet supply stores, Pet Town and Cookie’s Pet Corner and Wash, near the Petco site on Bethel Road
The pet supply company has been in a pitched battle with larger competitor PetSmart, which had sales of $7.1 billion reported last year.
Petco generated sales of $4 billion during the same reporting period.
Last fall, the two rivals discussed a buyout scenario in which a combined company would account for about half of the nation’s pet supply industry’s annual revenues.
Talks broke off amidst fears the deal would be rejected over antitrust concerns.
